Galpão em Condomínio
Nova Odessa / SP
straighten
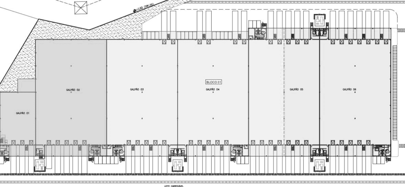
Área locável (ABL):
de 843 a 21.921 m²
Aluguel a partir de
Valor sob consulta
Cond: Valor sob consulta • IPTU: Valor sob consulta
Cód. do imóvel: 74260155
/
.../
Gostou do imóvel?
Fale conosco para saber mais detalhes sobre este galpão e receber outras opções similares.
Características do imóvel
straighten
Área total (ABL): 21.921 m²
26 módulos de 843 m²
garage_home
Quantidade de docas
26 docas
expand
Pé-direito
12 m de altura
weight
Capacidade de piso
6 t/m²
Informações adicionais
check_circle
Docas elevadas
check_circle
Área comum: 843 m²
Localização
Condomínio: Braspark Nova Odessa










