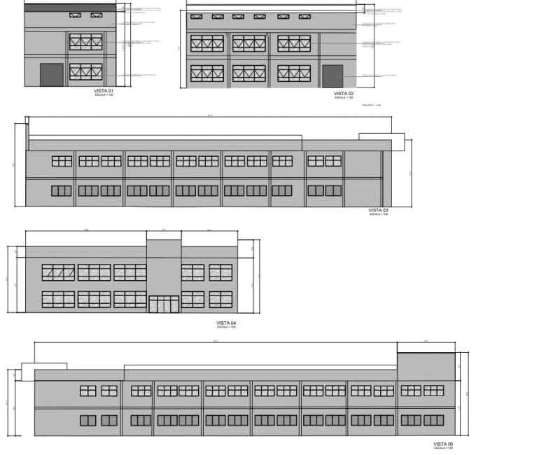
Galpão
Zona Oeste
São Paulo / SP
straighten
Área locável (ABL):
4.571 m²
Aluguel
R$ 182.800 /mês
Cond: Não possui • IPTU: R$ 10.970 /mês
Cód. do imóvel: 70825079
/
.../
Aluguel
R$ 182.800 /mês
Condomínio
Não possui
IPTU
R$ 10.970 /mês
Total a partir de
R$ 193.770 /mês
Precisa de ajuda? Fale conosco.
Características do imóvel
straighten
Área total (ABL): 4.571 m²
border_style
Área de piso: 2.100 m²
garage_home
Quantidade de docas
3 docas
expand
Pé-direito
4 m de altura
Informações adicionais
check_circle
Docas elevadas
check_circle
Área comum: 2.471 m²














