Galpão
Pojuca / BA
straighten
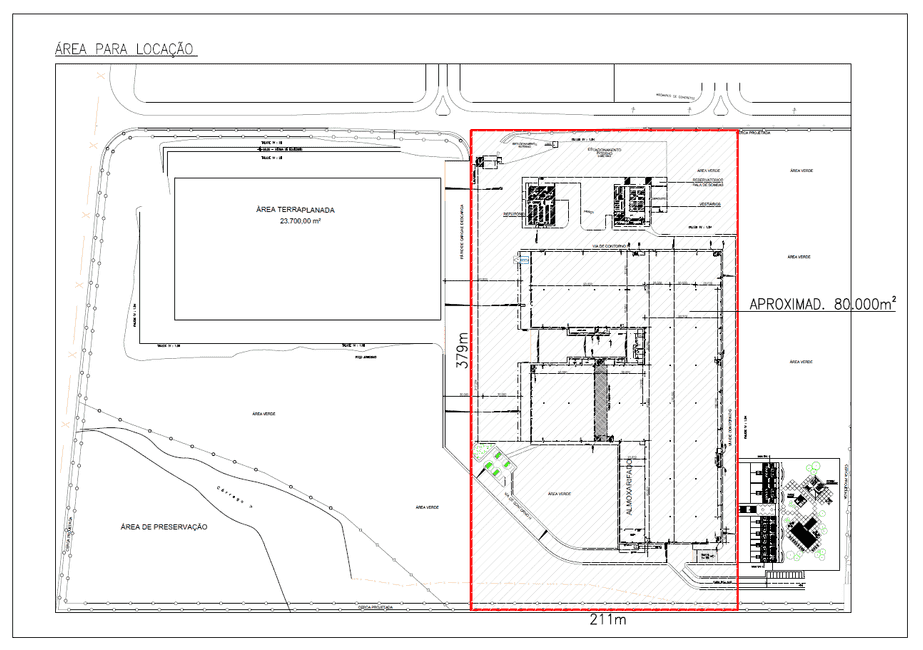
Área locável (ABL):
de 7.000 a 31.170 m²
Aluguel a partir de
R$ 161.000 /mês
Cond: Não possui • IPTU: Valor sob consulta
Cód. do imóvel: 35008032
/
.../
Aluguel
R$ 161.000 /mês
Condomínio
Não possui
IPTU
Valor sob consulta
Total a partir de
R$ 161.000 /mês
Precisa de ajuda? Fale conosco.
Características do imóvel
straighten
Área total (ABL): 31.170 m²
3 módulos de 7.000 a 13.750 m²
garage_home
Quantidade de docas
Não possui
expand
Pé-direito
8 m de altura
weight
Capacidade de piso
8 t/m²
Informações adicionais
check_circle
Área comum: 7.000 a 13.750 m²



