Galpão em Condomínio
Jundiaí / SP
straighten
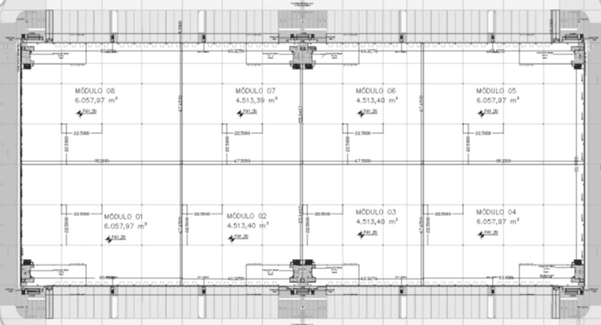
Área locável (ABL):
de 5.233 a 48.902 m²
Aluguel a partir de
Valor sob consulta
Cond: Valor sob consulta • IPTU: Valor sob consulta
Cód. do imóvel: 35001186
/
.../
Gostou do imóvel?
Fale conosco para saber mais detalhes sobre este galpão e receber outras opções similares.
Características do imóvel
straighten
Área total (ABL): 48.902 m²
8 módulos de 5.233 a 6.951 m²
border_style
Área de piso: 42.241 m²
8 módulos de 4.474 a 6.057 m²
garage_home
Quantidade de docas
104 docas
expand
Pé-direito
12 m de altura
weight
Capacidade de piso
6 t/m²
swap_horiz
Possui crossdocking
Informações adicionais
check_circle
Docas elevadas
check_circle
Marquise: 271 a 382 m²
check_circle
Escritório: 373 a 427 m²
check_circle
Área comum: 76 a 160 m²
Localização
Condomínio: HGLG Itupeva









