Galpão em Condomínio
Canoas / RS
straighten
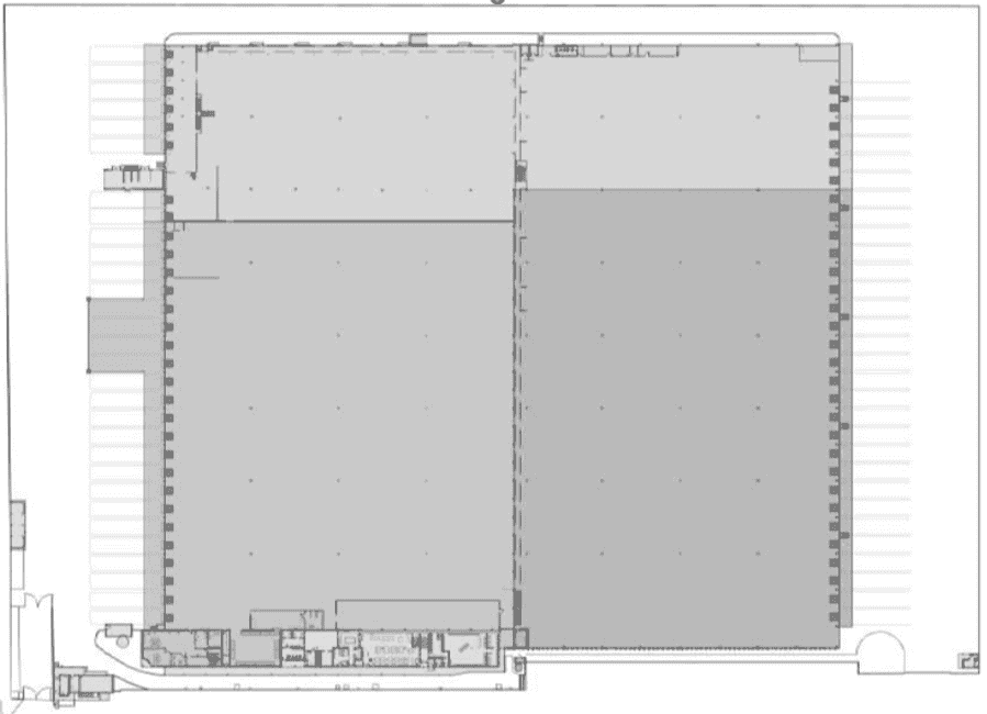
Área locável (ABL):
de 3.729 a 15.553 m²
Aluguel a partir de
Valor sob consulta
Cond: Valor sob consulta • IPTU: Valor sob consulta
Cód. do imóvel: 35006888
/
.../
Gostou do imóvel?
Fale conosco para saber mais detalhes sobre este galpão e receber outras opções similares.
Características do imóvel
straighten
Área total (ABL): 15.553 m²
4 módulos de 3.729 a 4.313 m²
border_style
Área de piso: 14.156 m²
4 módulos de 3.388 a 3.941 m²
garage_home
Quantidade de docas
32 docas
expand
Pé-direito
12 m de altura
weight
Capacidade de piso
6 t/m²
Informações adicionais
check_circle
Docas elevadas
check_circle
Marquise: 140 m²
check_circle
Área comum: 201 a 232 m²
Localização
Condomínio: Bresco Canoas



